WCFB®半干法脱硫技术

WCFB®发展历程:

纽林科技创始人吴玉林先生和CFB半干法脱硫除尘技术颇有渊源,从2000年开始一直从事流化床半干法技术的应用和研究,成果丰硕:

  • 是国内最早接触和从事CFB脱硫除尘技术人员之一。
  • 曾就职武汉凯迪电力环保有限公司第一任半干法脱硫除尘项目(广州恒运200MW 半干法脱硫除尘项目)项目经理。
  • 半干法脱硫除尘项目连续运行超长时间记录保持者-国电靖远电厂4#炉200MW KCFB 脱硫除尘项目。
  • 和德国原WULLF公司技术专家Zimmer合伙成立德资企业RAGAR,完全掌握全套CFB半干法脱硫除尘技术,解决了CFB稳定运行的核心问题。

经过多年的摸索和实践,从2008年开始,吴玉林先生就掌握了CFB半干法脱硫除尘工艺的核心技术,经过整合和封装,形成了有自主知识产权的WCFB®技术(稳定循环流化床半干法脱硫除尘技术),并申请了WCFB®商标。

WCFB®优化了CFB以达到在整个负荷范围内的最佳运行质量,意思是:在60%至100%负荷范围内,WCFB®系统的运行始终能保证处于非常稳定的状态,低于60%负荷时采用烟气再循环方式保证CFB的稳定运行。

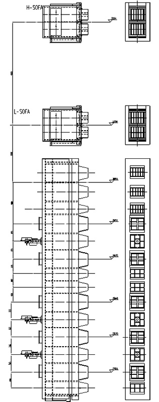
我司WCFB®全套工艺可实现烟气的超净排放,工艺流程及参数如下所示。

主要参数

SO2 = 85~99% SO3 99%
HCl 99% HF 99%
粉尘排放 5mg/Nm3 Ca/S = 1.2~1.5
重金属、呋喃
去除率
99% 二噁英去除 0.1ngTEQ/Nm3
保证可用率 98%

工艺流程简图

 

WCFB®技术特点:

  • WCFB®能够连续稳定运行,不会出现塌床、结垢、堵塞、性能不达标等问题;
  • 烟尘、SO2、NOx排放浓度分别不高于5、10、50mg/m3
  • 烟气排放温度大于80℃,烟气湿度低,且脱硫时不产生气溶胶等物质,不会出现湿法脱硫引起的雾霾;
  • 脱硫反应不但不产生CO2,反而能吸附烟气中约20%的 CO2
  • 对三氧化硫、汞、砷、HCl、HF、呋喃及二噁英等多污染物及重金属几乎全部去除;
  • 脱硫副产物为干粉状混合物,可用于建筑材料添加剂,加水压实后可以做路基等,不会污染地下水。也没有废水排放;
  • 占地面积小,投资低于湿法脱硫,在低硫煤烟气净化的运行费用远低于湿法脱硫;
  • 方便后续更严格环保标准的升级改造;
  • 单塔烟气处理能力达200万m3/h,适用于600MW以下火电机组的烟气净化。

湿法和半干法脱硫除尘技术比较

湿法技术 —— W-FGD

半干法脱硫除尘技术 —— WCFB®

气液反应,液气比是关键,所以需要喷洒大量液体,均流好。 气固反应,混合是关键,所以需要建好稳定的流化床,流化床压差控制好。
大量多次清洗,排烟温度50~60℃。 只需少许喷水,排烟温度 ≥ 80℃。
SO2排放浓度可降低至35mg/Nm3以下,脱硫效率可达99%,加装湿式电除尘,可超净排放。 SO2排放浓度可降低至35mg/Nm3以下,脱硫效率可达99%,可直接达到超净排放,一次投资,多次升级,不再花钱。
非常潮湿,易腐蚀;脱硫塔、出口烟道、烟囱都需要做防腐,材质要求高。需要1.4529,2520,C276,316L等高成本建材。 整体干燥,不怕腐蚀;脱硫塔,出口烟道,烟囱都无需防腐,极大的节约了成本。普通碳钢便可制作。
脱硫出口烟气含湿率大,即将达到饱和。 出口烟气湿度低,未饱和。
烟气出口白烟明显 – 白色污染。 烟气透明,烟气出口无明显排放物。可参考项目实例图片。
依赖除雾器,若效果不好则会下石膏雨,对环境造成后续污染。 烟气干燥,无需其他设备辅助,无后续污染风险。
脱硫产物 – 石膏,可用于建材。 脱硫产物 – 亚硫酸钙和灰混合物,可用于建材,实用性略低于石膏。
正常脱硫报价不包含前后除尘器这类辅助设备。为保证脱硫效率,入口烟气粉尘需小于100mg/Nm3 自带除尘器,粉尘排放有绝对保证。脱硫产物环保,经济无后患。
无法去除SO3、重金属、二噁英;所以在垃圾焚烧厂、玻璃行业很少用。 可99%去除SO3、重金属、二噁英;大量应用于垃圾焚烧厂,建材行业,危费处理行业。
烟气中的氯离子慢慢累积到废水中,腐蚀性强,需定时排放及处理。 污染物在灰混合物中,无废水排放,无需后续处理。
钙硫比小,运行电耗高,对高硫煤有优势。 钙硫比高,运行电耗低,对低硫煤(S≤1%)有绝对的优势。
耗水量大,水资源耗费大。 耗水量小,水资源耗费少。

WCFB®半干法核心产品

SCR/SNCR烟气脱硝技术

成熟的SNCR技术:

纽林科技技术人员有接近20年的SNCR工程设计、管理经验,综合国内外先进的CFD流场模拟技术,前后工艺组合技术,喷嘴和模块制造技术及撬装设计技术等,形成了自主的独特的SNCR技术,可以为广大用于提供专业化的技术支持和产品服务。

SNCR模块供货

项目用喷枪

喷枪喷射示例

泵组撬装模块

喷嘴设计

纽林科技拥有先进的喷嘴设计和制作技术。SNCR喷枪已应用于多个项目,并运作良好。

试验喷嘴及工装

30°喷雾锥角喷枪

喷枪项目应用

墙式喷射器

45°喷雾锥角喷枪

墙式喷射器

纽林科技已成功将该喷射器应用于多个项目现场,具有较好的脱硝效果。在某75t/h燃煤机组上运行稳定,平均脱硝效率达到75%。

SDS钠基干法脱硫除尘技术

什么是SDS?

Sodium Derivatives System(钠基干法脱硫除尘工艺),简称SDS。最早是由比利时索尔维(Solvay)公司应用,主要针对工业锅炉以及垃圾燃烧器排气中的酸性污染物处理。工艺流程中大量采用了氢氧化钠,碳酸钠等钠基盐作为净化手段,这也是SDS的命名由来。

工艺背景:

当今采用碳酸氢钠为吸附剂的干法吸附工艺已成为一个有效的烟气净化手段,用于去除烟气中所含的各种污染物。其净化效果可与已知的其它方式相比,如采用石灰乳为吸附剂的喷雾吸附法。干法烟气净化不仅可用于煤电厂、垃圾或替代燃料焚烧厂,还可广泛地用于玻璃、水泥、冶金等行业的工业炉。采用干法烟气净化可以经济地达到烟气排放标准。

基本原理:

碳酸氢钠(小苏打, NaHCO3)可以用作烟气脱硫的吸附剂。它通过化学吸附去除烟气中的酸性污染物,同时,它还可通过物理吸附去除一些无机和有机微量物质。此工艺将碳酸氢钠细粉直接喷入高温烟气。在高温下碳酸氢钠分解生成碳酸钠Na2CO3、H2O 和CO2。新产生的碳酸钠Na2CO3 在生成瞬间有高度的反应活性,可自发地与烟气中的酸性污染物进行反应。原则上碳酸钠(苏打,Na2CO3)也可用于烟气脱硫。碳酸钠的反应活性稍低,但工艺流程几乎不变。

其反应方程式如下:

主要反应: 2NaHCO3(s) = Na2CO3(s) + H2O(g) + CO2(g)
SO2(g) + Na2CO3(s) + O2 = Na2SO4(s) + CO2(g)
副反应: SO3(g) + Na2CO3(s) = Na2SO4(s)+CO2(g)
2HCL(g) + Na2CO3(s) = 2NaCL(s)+CO2(g)

要使得SDS系统达到预期的设计效果,需着重考虑如下几个核心因素:

  • 磨机的选择
  • 烟气温度
  • 碳酸氢钠和烟气的混合
  • 布袋除尘器的考虑

超细磨机

SDS系统在国内成功投运,所采用的超细磨机,基本上都是进口的,主要集中在三个国家:意大利、德国和加拿大。

随着3d打印技术的快速发展,3d打印产业链中的粉体制备领域,国内的超细磨机装置也得到了快速的发展,近期国产磨机也可以达到相同的效果。小苏打和超细磨机,无需依赖进口即可达到SDS系统的要求。

纽林科技SDS烟气处理流程:

烟气处理特点

  • 干法处理,工艺简单可靠(年工作时间可超8100小时)
  • 助剂(碳酸氢钠)与残留物无刺激性,无毒
  • 残留物为干燥的固体,且量少
  • HCl 去除率> 99%
  • SO2 去除率> 95%
  • 轻松应对有害物质浓度波动
  • 助剂成本较高,但处理费用低
  • 投资成本低
  • 运行与维护成本低

低氮燃烧技术

燃煤 - 深度低氮燃烧控制技术

目前国内低氮燃烧技术主要以分级燃烧占主流地位,根据氮氧化物排放目标的不同,分级风量大约在25-40%之间。大量的空气从燃烧器上部送入使得主燃烧区形成严重缺氧状态,如果处理的不恰当,往往会带来炉膛结焦、出口烟温升高,喷水量过大,飞灰含碳量增加,锅炉效率下降等严重问题。

在降低氮氧化物生成的同时为了避免上述问题的发生,我公司结合自身多年的锅炉行业设计经验和不断的技术创新,公司研发出既可以实现更低氮氧化物排放,同时还可以避免炉膛结焦、出口烟温升高,喷水量过大,飞灰含碳量增加,锅炉效率下降等问题的新型低氮燃烧技术。该技术结合了空气分级燃烧和燃料再燃的优点,吸收了浓淡燃烧和SOFA分级布置的先进理念,形成了自己的专有技术——深度低氮燃烧控制技术。

燃尽风采用两级SOFA布置,一次风采用水平浓淡分离技术,二次风采用反切风和CFS偏置风技术。主燃烧区强化燃烧技术,缩短主燃烧区火焰行程,利用二次风的不均等配风实现分区燃尽,在确保脱氮效果的前提下,尽量减少燃尽风风量。

性能指标:
  • 更低氮氧化物排放,根据不同煤种实现氮氧化物排放在200-420mg/Nm3
  • 多煤种适应性,可燃基挥发份大于10%的煤种均可以稳定燃烧
  • 更低负荷稳燃,根据不同煤种实现30-50%低负荷稳燃
  • 不出现锅炉结焦、炉膛出口烟温升高、锅炉效率降低等问题
  • 低氧量燃烧,炉膛出口氧量控制在3-3.5%之间
  • 更低Q4损失,飞灰含碳量一般可以维持在3%以下

直流低NOx燃烧器

水平浓淡燃烧分布图

燃烧器一次风采用百叶窗将煤粉浓缩分离,在煤粉喷嘴处形成局部的煤粉浓淡偏差燃烧,提高浓相煤粉的加热速率与挥发分(尤其是挥发分氮)的析出量,来控制燃烧初期的NOx生成。为充分发挥直流燃烧器的NOx控制能力,并防止炉膛水冷壁结渣,组织二次风射流偏离一次风,使每角燃烧器处于火焰、浓相煤粉、淡相煤粉、二次风的燃烧次序,形成水平浓淡分级“风包粉”燃烧。采用这种燃烧方式,可使炉膛中央浓相煤粉缺氧燃烧、四周淡相煤粉富氧燃烧,将NOx排放浓度降低约20-40%。

燃料分级燃烧技术

再燃烧原理示意图

再燃是把炉内燃料分级与空气分级结合在一起,将炉内燃烧过程分为三个区域:主燃区、再燃区和燃尽区。约80~85%的一次燃料喷入主燃区,在氧化气氛(α=1.1~1.15)下剧烈燃烧,生成大量NOx的同时提高煤粉的早期燃尽;约15~20%的二次燃料(含N量低的天然气、油或者高挥发分的超细煤粉)在主燃区上方喷入炉膛,在强还原气氛(α=0.7~0.9)条件下燃烧,二次燃料产生大量碳氢原子团(HCN),将来自主燃区的NOx还原成N2;剩余的二次风由OFA喷口送入燃尽区,富氧(α=1.15)强化焦炭的燃烧。

再燃技术将低NOx燃烧器、燃料与空气的分级燃烧、以及锅炉性能等作为一个整体来考虑,是目前较为先进的低NOx燃烧技术,NOx降低率约为50%~70%,但其系统结构与运行相对复杂。适用于四角切园、旋流燃烧器、“W”火焰燃烧的所有锅炉。

低NOx燃烧技术的机理

NOx生成与控制机理框图

煤燃烧产生的NOx主要包括 NxO、NO、NO2、N2O3、N2O4、N2O5等,在电站燃煤锅炉中生成的几乎全是NO和NO2,我们通常把这两种氮氧化物总称为NOx,其中NO占90%以上,其余为NO2。按照NOx生成的机理可分为热力型NOx、快速型NOx和燃料型NOx,在煤燃烧时约75%-90%的NOx属燃料型NOx,热力型NOx与快速型NOx所占份额都很少。

旋流低NOx燃烧器

我公司旋流低氮燃烧器应用空气分级理念,采用双调风的方式,也就是将二次风分为内外两股,分别送入炉膛,实现分级燃烧。通过增加分流板达到点火初期只提供着火所需的有限氧气,使燃烧过程偏离化学当量比,控制氮氧化物的生成。同时一次风采用浓淡技术,达到加速传热、着火和煤粉气化,实现燃烧初期高温下还原NOx。为了在降低NOx排放的同时减少对燃烧效率的影响,采用了提前着火、强化燃烧的稳燃环的结构,同时配合制粉系统和燃烧系统整体优化达到较低NOx的排放。

空气分级燃烧技术

将燃烧所需的空气量分成两级送入,使第一级燃烧区内过量空气系数在0.8左右,燃料先在缺氧的富燃料条件下燃烧,使得燃烧速度和温度降低,因而抑制了热力型NOx的生成。同时,燃烧生成的CO和NO进行还原反应,以及燃料N分解成中间产物(如NH、CN、HCN和NH3等)相互作用或与NO还原分解,抑制了燃料型NOx的生成。

在二级燃烧区内,将燃烧用的空气的剩余部分以二次空气输入,成为富氧燃烧区。此时空气量虽多,一些中间产物被氧化生成N,但因火焰温度低,NOx生成量不大,因而总的NOx生成量是降低的,最终空气分级燃烧可使NOx生成量降低20%~30%。

废白土治理系统

废白土特性

废白土主要由白土、油和相应的杂质构成,排出的温度一般为120℃左右。废白土具有黏附性强、易自燃和异味大等特点。

  • 黏附性强:不易输送

    在实际生产过程中,废白土水分和油含量不同,导致废白土的黏性、安息角均不同,因此在竖直壁面,废白土依旧可以形成挂壁,在仓罐中储存,容易黏附、挂壁和搭桥,因此对中间储存和输送带来了很大的挑战。

  • 易自燃:储存难,有危险

    由于废白土中含有20~30%的油,在接触氧气后,容易阴燃,并产生较大的油烟。因此,在日常运行中,往往由操作人员人工喷水灭火。

  • 异味大:危害健康,污染环境

    白土脱色工艺在除臭工艺之前,白土具有较好的吸附性,因此废白土中含有较大的异味,同时废白土自然也会产生较大的油烟,这些都是异味的来源,因此废白土若未密封储存,极易导致整个精炼车间充满异味,对人体和周边环境产生较大的影响。

由于废白土具有以上特性,从而导致很多已建精炼车间,一直维持着地面储存加四周围护、人工喷水灭烟和装载机装车的现有处理方法,从而导致该区域的现场环境一直无法得到改善,粉尘和异味污染一直无法根治。

废白土储仓

废白土自燃

废白土排放时产生的废气

废白土中间储存、出料和异味治理系统

当前油脂加工行业精炼车间,往往采用中和、脱色和除臭三个工艺,将毛油通过精炼工艺加工成一级油。在脱色工段,脱胶后的油和脱色白土(活性白土、凹凸棒白土和助滤剂)混合进入油土混合罐并经过一系列的脱色吸附通过过滤机将白土排出,排出的白土为废白土。

武汉纽林环境能源科技有限公司通过详细的调查、分析和试验,以及结合丰富的工程设计经验,提出了一套“废白土中间储存卸料和异味治理”解决方案。该系统主要由:废白土中间储仓、消防喷淋系统、出料排料系统、破拱防挂壁系统、异味治理系统和电气、控制、结构等辅助系统构成,经过巧妙设计,该系统可以实现废白土排放区域无粉尘和异味污染,全自动储料、出料和装车,从而彻底解决了精炼车间存在的顽疾。

精炼车间中和、脱色和除臭工艺流程图

控制画面

介绍及文档下载

WCFB®样本   下载

产品及设备样本  下载